Plany i ceny mieszkań w Warszawie
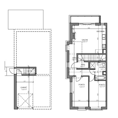
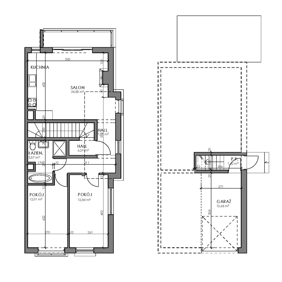
Lokal nr 2 w segmencie A - 62,32 m2, II piętro
-
Salon + aneks kuchenny 24,58 m2 Hall 7,32 m2 Łazienka 5,57 m2 Pokój 12,01 m2 Pokój 12,84 m2 Stanowisko parkingowe w garażu pow. 13,68m2 Cena: 395.000,00 (w tym garaż 35.000,00)- 5.777,00 PLN/m2
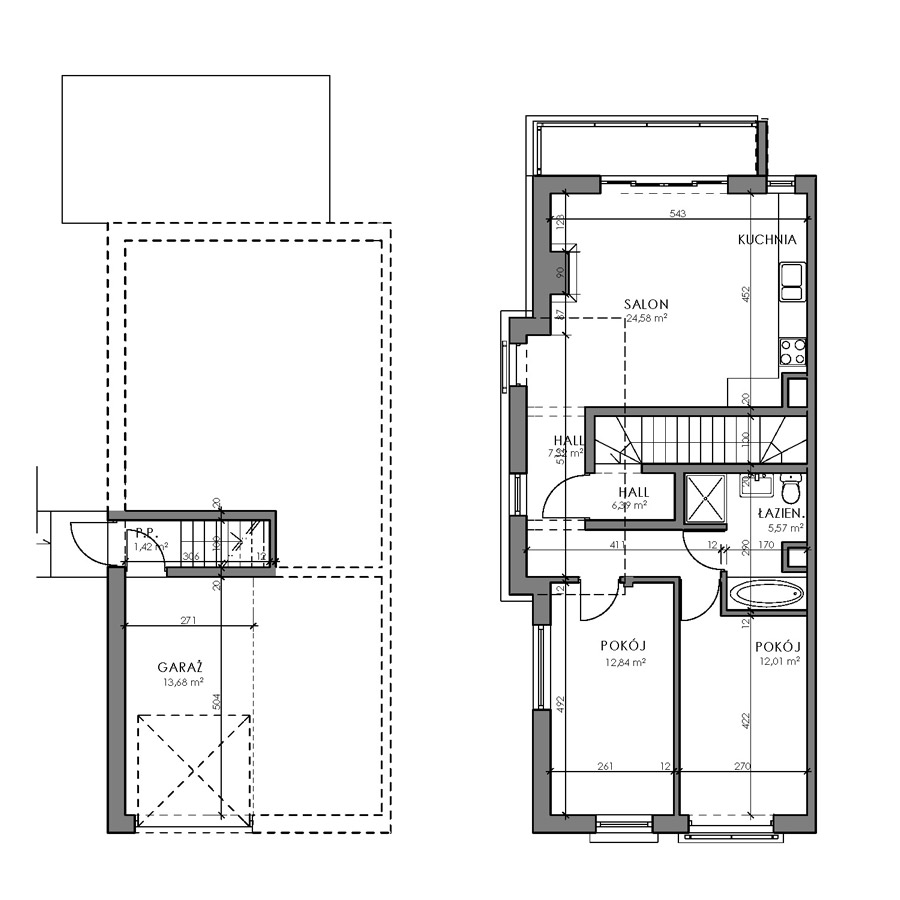
Lokal nr 2 w segmencie B - 62,32 m2, II piętro
-
Salon + aneks kuchenny 24,58 m2 Hall 7,32 m2 Łazienka 5,57 m2 Pokój 12,01 m2 Pokój 12,84 m2 Stanowisko parkingowe w garażu pow. 13,68 m2 Cena: 395.000,00 (w tym garaż 35.000,00)- 5.777,00 PLN/m2
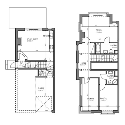
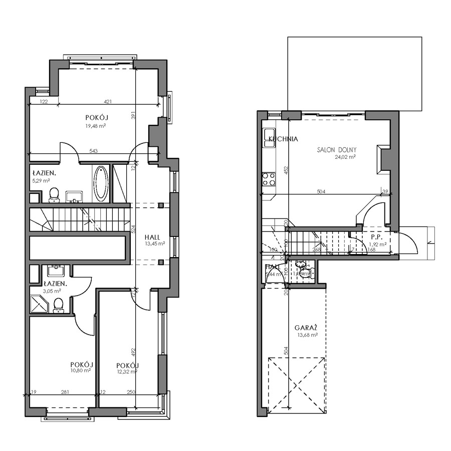
Lokal nr 1 w segmencie A - 96,95 m2, mieszkanie dwupoziomowe
-
I Poziom
Salon + aneks kuchenny 24,02 m2 WC 1,18 m2 Hall 5,44 m2 Przedpokój 1,92 m2 Stanowisko parkingowe w garażu pow. 13,68 m2 Ogródek ok. 80 m2 II Poziom
Pokój 19,48 m2 Łazienka 5,29 m2 Hall 13,45 m2 Łazienka 3,05 m2 Pokój 10,80 m2 Pokój 12,32 m2 Cena: 565.000,00 (w tym garaż 35.000,00 i ogródek 30.000,00 - 5.210,00 PLN/m2
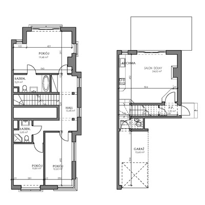
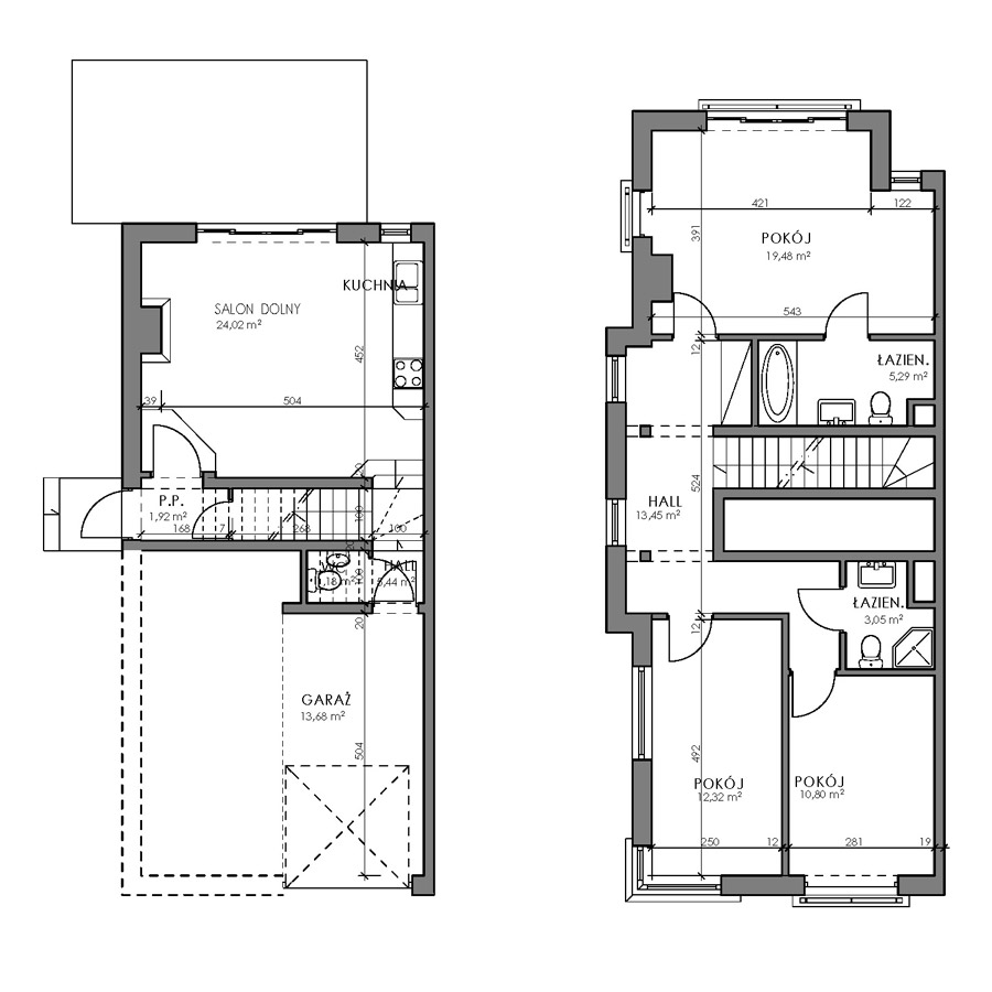
Lokal nr 1 w segmencie B - 96,95 m2, mieszkanie dwupoziomowe
-
I Poziom
Salon + aneks kuchenny 24,02 m2 WC 1,18 m2 Hall 5,44 m2 Przedpokój 1,92 m2 Stanowisko parkingowe w garażu pow. 13,68 m2 Ogródek ok. 80 m2 II Poziom
Pokój 19,48 m2 Łazienka 5,29 m2 Hall 13,45 m2 Łazienka 3,05 m2 Pokój 10,80 m2 Pokój 12,32 m2 Cena: 565.000,00 (w tym garaż 35.000,00 i ogródek 30.000,00 - 5.210,00 PLN/m2
DOSTĘPNOŚĆ LOKALI
-
Budynek I
Lokal nr 1 w segmencie A - 96,95 m2, mieszkanie dwupoziomowe Sprzedany Lokal nr 2 w segmencie A - 62,32 m2, II piętro Sprzedany Lokal nr 1 w segmencie B - 96,95 m2, mieszkanie dwupoziomowe Sprzedany Lokal nr 2 w segmencie B - 62,32 m2, II piętro Sprzedany Budynek II
Lokal nr 1 w segmencie A - 96,95 m2, mieszkanie dwupoziomowe Sprzedany Lokal nr 2 w segmencie A - 62,32 m2, II piętro Sprzedany Lokal nr 1 w segmencie B - 96,95 m2, mieszkanie dwupoziomowe Sprzedany Lokal nr 2 w segmencie B - 62,32 m2, II piętro Sprzedany Budynek III
Lokal nr 1 w segmencie A - 96,95 m2, mieszkanie dwupoziomowe Sprzedany Lokal nr 2 w segmencie A - 62,32 m2, II piętro Sprzedany Lokal nr 1 w segmencie B - 96,95 m2, mieszkanie dwupoziomowe Sprzedany Lokal nr 2 w segmencie B - 62,32 m2, II piętro Sprzedany Budynek IV
Lokal nr 1 w segmencie A - 96,95 m2, mieszkanie dwupoziomowe (W trakcie budowy) Sprzedany Lokal nr 2 w segmencie A - 62,32 m2, II piętro (W trakcie budowy) Sprzedany Lokal nr 1 w segmencie B - 96,95 m2, mieszkanie dwupoziomowe (W trakcie budowy) Sprzedany Lokal nr 2 w segmencie B - 62,32 m2, II piętro (W trakcie budowy) Sprzedany Budynek V
Lokal nr 1 w segmencie A - 96,95 m2, mieszkanie dwupoziomowe (W trakcie budowy) Dostępny Lokal nr 2 w segmencie A - 62,32 m2, II piętro (W trakcie budowy) Sprzedany Lokal nr 1 w segmencie B - 96,95 m2, mieszkanie dwupoziomowe (W trakcie budowy) Dostępny Lokal nr 2 w segmencie B - 62,32 m2, II piętro (W trakcie budowy) Sprzedany
Zapytaj o mieszkanie
Kliknij aby wypełnić formularz.Nasz doradca skontaktuje się
z Tobą niezwłocznie.
Zapytaj o kredyt
W celu maksymalnego ułatwienia i przyśpieszenia procedury uzyskania finansowania na zakup mieszkania, podjęliśmy współpracę z Domem Kredytowym NOTUS S.A. jedną z największych, niezależnych firm doradztwa finansowego w zakresie kredytów i pożyczek hipotecznych. Oferta wielu banków w jednym miejscu gwarantuje dobór najlepszego rozwiązania.
Usługi firmy są bezpłatne, a doradca finansowy:
- potwierdzi zdolność finansową Klienta,
- sprawi, że zakup mieszkania będzie miłym i przyjemnym doświadczeniem
- pomoże w wyborze najkorzystniejszego kredytu hipotecznego,
- wynegocjuje warunki kredytowe,
- pomoże przy kompletowaniu dokumentów i podpisywaniu umowy,
- zapewni opiekę i konsultacje również w trakcie całego okresu kredytowania.
Twój dedykowany doradca finansowy:
Marcin Czapliński
Dom Kredytowy NOTUS S.A.
00 -515 Warszawa, ul. Marszałkowska 76
tel. kom.: 695 855 634
email: marcin.czaplinski@dknotus.pl
5% rabatu
Wcześniejsza rezerwacja lokali pozwoli Państwu uzyskać do 5% obniżki ceny.




